Aller à :

  • Aller à la recherche
  • Aller au menu principal
  • Aller au contenu
0
  • Accueil
  • Ventes
    • Appartements
    • Villas
    • Terrains
    • Programmes neufs
    • Autres
  • Locations
    • Appartements
    • Villas
  • Alerte e-mail
  • ESTIMATIONS
  • Notre agence
0
  1. Accueil
  2. Vente neuf
  3. Argeles sur mer
  4. Appartement
  5. T2
  • Acheter Du neuf
Créez votre alerte e-mail
Dans un rayon de
Budget
Mini €
Maxi €

    Faites estimer votre bien par un professionnel

    Estimer votre bien
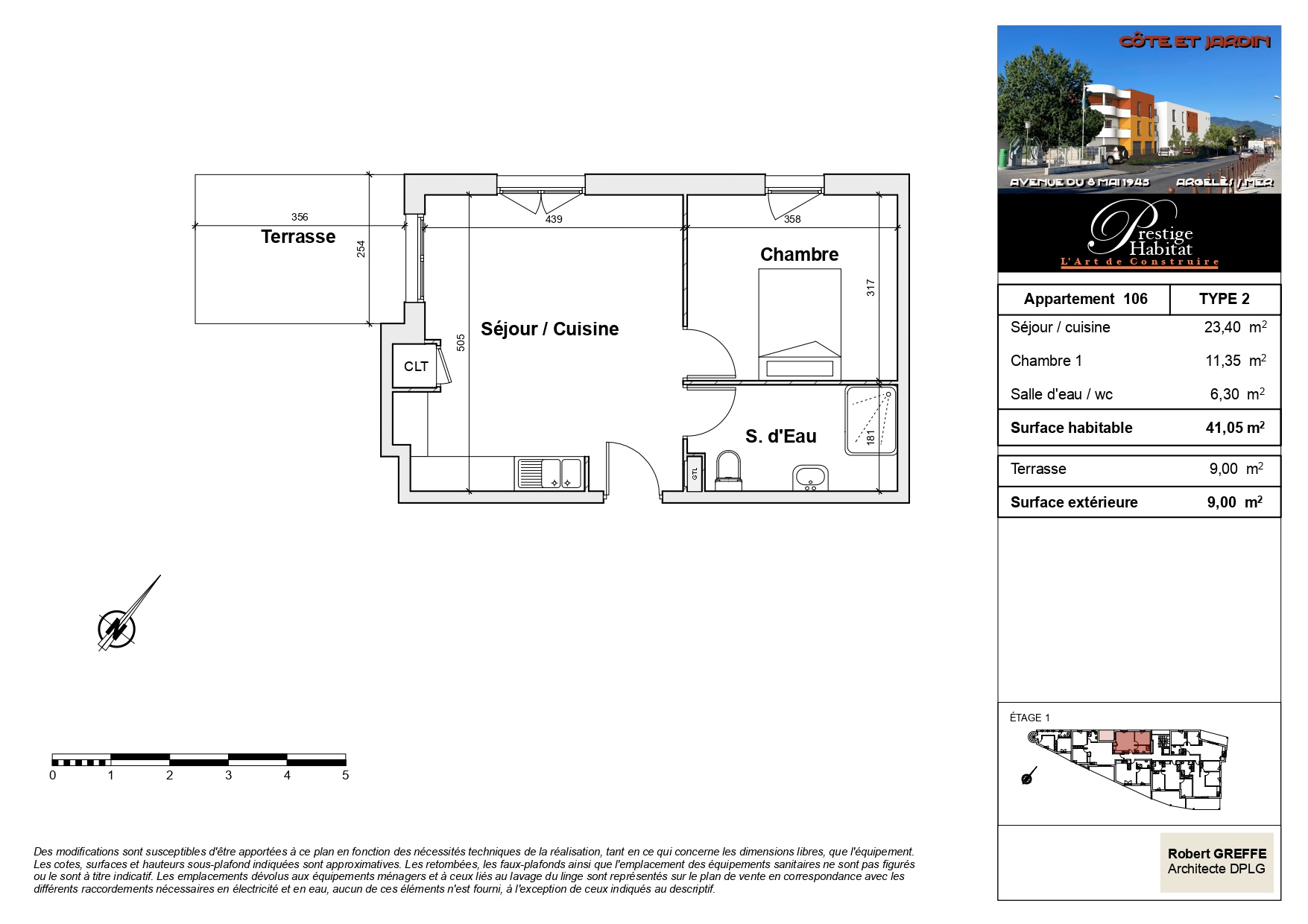
    Réf : 0701 N°205 BIS
    Appartement
    ARGELES-SUR-MER : APPARTEMENT 2 PIECES − TERRASSE
    Nombre de pièces 2
    Nombre de chambres 1
    Salle d'eau 1
    230 000 €

    ARGELES-SUR-MER : APPARTEMENT 2 PIECES − TERRASSE Argelès-sur-Mer (66700)

    OPPORTINITE !!!!! Résidence livrée

    ARGELÈS-SUR-MER : Idéalement situé entre le village et la plage, dans une résidence récente et moderne avec ascenseur, l’Agence LAVILLE IMMO vous propose cet appartement T2 neuf au 1er étage, d’une superficie de 41,05 m² Loi Carrez. Il se compose d’une pièce de vie lumineuse avec cuisine ouverte donnant sur une agréable terrasse, parfaite pour profiter du climat méditerranéen, d’une chambre spacieuse et d’une salle d’eau moderne. La résidence est livrée, les visites sont possibles immédiatement. Appartements prêts à habiter, idéal pour une résidence principale, un pied-à-terre à la mer ou un investissement locatif. Sa situation privilégiée, à deux pas des plages, des commerces et des commodités, en fait un bien rare sur le marché d’Argelès-sur-Mer.

    Prestations :

    • Normes RT 2020

    • Assurance Dommages Ouvrages

    • Frais de notaire réduits

    • Prix direct promoteur

    • Bien soumis au statut de la copropriété (12 lots)

    Une belle opportunité à découvrir sans tarder !
    Pour plus d’informations ou pour planifier une visite, contactez dès aujourd’hui l’Agence LAVILLE IMMO.

    Les informations sur les risques auxquels ce bien est exposé sont disponibles sur le site : www.georisques.gouv.fr.
    Honoraires d’agence à la charge du vendeur.

    • Général
    • Détails +
    • Copropriété
    • Financier
    • DPE
    • Quartier
    Caractérisque Valeurs
    Code postal 66700
    Surface habitable (m²) 41,05 m²
    Surface loi Carrez (m²) 41,05 m²
    Nombre de chambre(s) 1
    Nombre de pièces 2
    Etage 1
    Caractérisque Valeurs
    Nb de salle d'eau 1
    Cuisine Américaine
    Type de cuisine SEMI-EQUIPEE
    Mode de chauffage Climatisation
    Type de chauffage Convecteur
    Format de chauffage Individuel
    Balcon NON
    Terrasse OUI
    Cave NON
    Nombre de parking 1
    Année de construction 2025
    Caractérisque Valeurs
    Copropriété OUI
    Lot n° 106
    nombre de lots 26
    Caractérisque Valeurs
    Prix de vente 230 000 €
    Les honoraires d'agence seront intégralement à la charge du vendeur  
    DPE GES
    • Commerces et santé
    • Loisirs
    • Ecoles
    • Transports
    • Pratique
    Cette offre
    vous intéresse

    * champs obligatoires

    Les informations recueillies sur ce formulaire sont enregistrées dans un fichier informatisé par La Boite Immo agissant comme Sous-traitant du traitement pour la gestion de la clientèle/prospects de l'Agence / du Réseau qui reste Responsable du Traitement de vos Données personnelles. La base légale du traitement repose sur l'intérêt légitime de l'Agence / du Réseau. Elles sont conservées jusqu'à demande de suppression et sont destinées à l'Agence / au Réseau. Conformément à la loi « informatique et libertés », vous disposez des droits d’accès, de rectification, d’effacement, d’opposition, de limitation et de portabilité de vos données. Vous pouvez retirer votre consentement à tout moment en contactant directement l’Agence / Le Réseau. Consultez le site https://cnil.fr/fr pour plus d’informations sur vos droits. Si vous estimez, après avoir contacté l'Agence / le Réseau, que vos droits « Informatique et Libertés » ne sont pas respectés, vous pouvez adresser une réclamation à la CNIL. Nous vous informons de l’existence de la liste d'opposition au démarchage téléphonique « Bloctel », sur laquelle vous pouvez vous inscrire ici : https://www.bloctel.gouv.fr Dans le cadre de la protection des Données personnelles, nous vous invitons à ne pas inscrire de Données sensibles dans le champ de saisie libre.
    Ce site est protégé par reCAPTCHA, les Politiques de Confidentialité et les Conditions d'Utilisation de Google s'appliquent.

    Partager le bien
    Nos outils
    Imprimer Imprimer
    Calculatrice financière

    * Champ obligatoire

    Partager l'annonce

    * champs obligatoires

    Les informations recueillies sur ce formulaire sont enregistrées dans un fichier informatisé par La Boite Immo agissant comme Sous-traitant du traitement pour la gestion de la clientèle/prospects de l'Agence / du Réseau qui reste Responsable du Traitement de vos Données personnelles. La base légale du traitement repose sur l'intérêt légitime de l'Agence / du Réseau. Elles sont conservées jusqu'à demande de suppression et sont destinées à l'Agence / au Réseau. Conformément à la loi « informatique et libertés », vous disposez des droits d’accès, de rectification, d’effacement, d’opposition, de limitation et de portabilité de vos données. Vous pouvez retirer votre consentement à tout moment en contactant directement l’Agence / Le Réseau. Consultez le site https://cnil.fr/fr pour plus d’informations sur vos droits. Si vous estimez, après avoir contacté l'Agence / le Réseau, que vos droits « Informatique et Libertés » ne sont pas respectés, vous pouvez adresser une réclamation à la CNIL. Nous vous informons de l’existence de la liste d'opposition au démarchage téléphonique « Bloctel », sur laquelle vous pouvez vous inscrire ici : https://www.bloctel.gouv.fr Dans le cadre de la protection des Données personnelles, nous vous invitons à ne pas inscrire de Données sensibles dans le champ de saisie libre.
    Ce site est protégé par reCAPTCHA, les Politiques de Confidentialité et les Conditions d'Utilisation de Google s'appliquent.

    Détail des diagnostics énergétiques
    DPE GES
    DPE vierge

    Partager avec vos proches

    Facebook Facebook
    Messenger Messenger
    Twitter Twitter
    WhatsApp WhatsApp
    LinkedIn LinkedIn
    Copier le lien Copier le lien
    Se connecter
    Espace propriétaire
    Page d'accueil
    Adhérents

    © 2026 | Tous droits réservés | Traduction powered by Google |

    • Nos honoraires
    • Plan du site
    • Mentions légales
    • Admin
    • Nos liens
    • Politique RGPD

    Comme beaucoup, notre site utilise les cookies

    On aimerait vous accompagner pendant votre visite. En poursuivant, vous acceptez l'utilisation des cookies par ce site, afin de vous proposer des contenus adaptés et réaliser des statistiques !

    Paramétrer

    Statistiques de visites

    Pour améliorer votre expérience, on a besoin de savoir ce qui vous intéresse !
    Les données récoltées sont anonymisées.

    ?

    Google Analytics

    requis
    ?

    Google Tag Mananger

    requis
    En savoir plus
    • Acheter Du neuf
    Créez votre alerte e-mail
    Dans un rayon de
      Budget
      Mini €
      Maxi €
      Surface
      Mini m²
      Maxi m²

      Dispositifs fiscaux

      Particularites

      Equipements

      Exposition

      Afficher les biens

      Faites estimer votre bien par un professionnel

      Estimer votre bien