Aller à :

  • Aller à la recherche
  • Aller au menu principal
  • Aller au contenu
0
  • Accueil
  • Ventes
    • Appartements
    • Villas
    • Terrains
    • Programmes neufs
    • Autres
  • Locations
    • Appartements
    • Villas
  • Alerte e-mail
  • ESTIMATIONS
  • Notre agence
0
  1. Accueil
  2. Vente
  3. St cyprien
  4. Maison
  5. T7
  6. Villa 4 faces saint cyprien plage
  • Acheter De l'ancien
Créez votre alerte e-mail
Dans un rayon de
Budget
Mini €
Maxi €

    Faites estimer votre bien par un professionnel

    Estimer votre bien
    Réf : 0810
    Maison
    Villa 4 faces Saint Cyprien plage
    Nombre de pièces 7
    Nombre de chambres 4
    TRAD_MELTEM_Superficieterrainenm² 700 m²
    565 000 €

    Villa 4 faces Saint Cyprien plage Saint-Cyprien (66750)

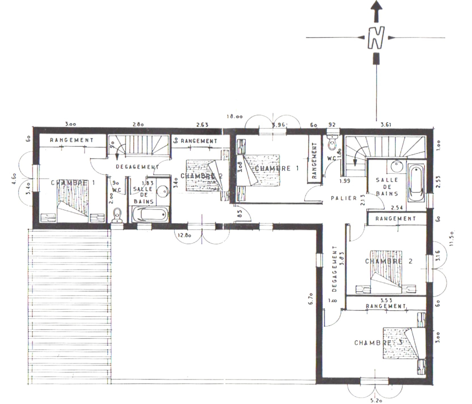
    Un prix au m² attractif. A Saint Cyprien plage, au calme dans un quartier résidentiel, villa 4 faces composée de 4 chambres, un séjour cuisine, un bureau, une salle de bain.

    En complément, un appartement en duplex composé d'une cuisine séjour, une chambre et une salle d'eau.

    La maison, de construction traditionnelle, bénéficie d'une double terrasse, un abri de jardin, un garage et un forage (profondeur 25 mètres)

    Possibilité de stationner un camping car sur la propriété. Un bien idéal pour une grande famille ou un projet de chambre d'hôtes, gîtes ou colocation.

    Pour une visite, contactez Pierre DORNIER, agence LAVILLE IMMO au 06 11 03 47 20 RSAC N°828 832 824 - EI - Ville du greffe : PERPIGNAN. Les informations sur les risques auxquels ce bien est exposé sont disponibles sur le site Géorisques : https://www.georisques.gouv.fr.


    • Général
    • Détails +
    • Copropriété
    • Financier
    • DPE
    • Quartier
    Caractérisque Valeurs
    Code postal 66750
    Surface habitable (m²) 205 m²
    surface terrain 700 m²
    Nombre de chambre(s) 4
    Nombre de pièces 7
    Nombre de niveaux 1
    Vue dégagée, Pyrénées
    Caractérisque Valeurs
    Mode de chauffage Gaz
    Type de chauffage TRAD_TYPE_CHAUFF_CHAUDIERE
    Format de chauffage Individuel
    Nombre de garage 1
    Exposition Sud
    Année de construction 1989
    Caractérisque Valeurs
    Copropriété OUI
    nombre de lots 56
    Caractérisque Valeurs
    Prix de vente 565 000 €
    Les honoraires d'agence seront intégralement à la charge du vendeur  
    DPE GES
    • Commerces et santé
    • Loisirs
    • Ecoles
    • Transports
    • Pratique
    Cette offre
    vous intéresse

    * champs obligatoires

    Les informations recueillies sur ce formulaire sont enregistrées dans un fichier informatisé par La Boite Immo agissant comme Sous-traitant du traitement pour la gestion de la clientèle/prospects de l'Agence / du Réseau qui reste Responsable du Traitement de vos Données personnelles. La base légale du traitement repose sur l'intérêt légitime de l'Agence / du Réseau. Elles sont conservées jusqu'à demande de suppression et sont destinées à l'Agence / au Réseau. Conformément à la loi « informatique et libertés », vous disposez des droits d’accès, de rectification, d’effacement, d’opposition, de limitation et de portabilité de vos données. Vous pouvez retirer votre consentement à tout moment en contactant directement l’Agence / Le Réseau. Consultez le site https://cnil.fr/fr pour plus d’informations sur vos droits. Si vous estimez, après avoir contacté l'Agence / le Réseau, que vos droits « Informatique et Libertés » ne sont pas respectés, vous pouvez adresser une réclamation à la CNIL. Nous vous informons de l’existence de la liste d'opposition au démarchage téléphonique « Bloctel », sur laquelle vous pouvez vous inscrire ici : https://www.bloctel.gouv.fr Dans le cadre de la protection des Données personnelles, nous vous invitons à ne pas inscrire de Données sensibles dans le champ de saisie libre.
    Ce site est protégé par reCAPTCHA, les Politiques de Confidentialité et les Conditions d'Utilisation de Google s'appliquent.

    Partager le bien
    Nos outils
    Imprimer Imprimer
    Calculatrice financière

    * Champ obligatoire

    Partager l'annonce

    * champs obligatoires

    Les informations recueillies sur ce formulaire sont enregistrées dans un fichier informatisé par La Boite Immo agissant comme Sous-traitant du traitement pour la gestion de la clientèle/prospects de l'Agence / du Réseau qui reste Responsable du Traitement de vos Données personnelles. La base légale du traitement repose sur l'intérêt légitime de l'Agence / du Réseau. Elles sont conservées jusqu'à demande de suppression et sont destinées à l'Agence / au Réseau. Conformément à la loi « informatique et libertés », vous disposez des droits d’accès, de rectification, d’effacement, d’opposition, de limitation et de portabilité de vos données. Vous pouvez retirer votre consentement à tout moment en contactant directement l’Agence / Le Réseau. Consultez le site https://cnil.fr/fr pour plus d’informations sur vos droits. Si vous estimez, après avoir contacté l'Agence / le Réseau, que vos droits « Informatique et Libertés » ne sont pas respectés, vous pouvez adresser une réclamation à la CNIL. Nous vous informons de l’existence de la liste d'opposition au démarchage téléphonique « Bloctel », sur laquelle vous pouvez vous inscrire ici : https://www.bloctel.gouv.fr Dans le cadre de la protection des Données personnelles, nous vous invitons à ne pas inscrire de Données sensibles dans le champ de saisie libre.
    Ce site est protégé par reCAPTCHA, les Politiques de Confidentialité et les Conditions d'Utilisation de Google s'appliquent.

    Détail des diagnostics énergétiques
    DPE GES

    Montant estimé des dépenses annuelles d'énergie pour un usage standard est compris entre 1 580 € et 2 220 € . Prix moyens des énergies indexés sur les années 2021, 2022 et 2023 (abonnements compris).

    Partager avec vos proches

    Facebook Facebook
    Messenger Messenger
    Twitter Twitter
    WhatsApp WhatsApp
    LinkedIn LinkedIn
    Copier le lien Copier le lien
    Se connecter
    Espace propriétaire
    Page d'accueil
    Adhérents

    © 2026 | Tous droits réservés | Traduction powered by Google |

    • Nos honoraires
    • Plan du site
    • Mentions légales
    • Admin
    • Nos liens
    • Politique RGPD

    Comme beaucoup, notre site utilise les cookies

    On aimerait vous accompagner pendant votre visite. En poursuivant, vous acceptez l'utilisation des cookies par ce site, afin de vous proposer des contenus adaptés et réaliser des statistiques !

    Paramétrer

    Statistiques de visites

    Pour améliorer votre expérience, on a besoin de savoir ce qui vous intéresse !
    Les données récoltées sont anonymisées.

    ?

    Google Analytics

    requis
    ?

    Google Tag Mananger

    requis
    En savoir plus
    • Acheter De l'ancien
    Créez votre alerte e-mail
    Dans un rayon de
      Budget
      Mini €
      Maxi €
      Surface
      Mini m²
      Maxi m²
      Surface terrain
      Mini m²
      Maxi m²

      Particularites

      Equipements

      Exposition

      Afficher les biens

      Faites estimer votre bien par un professionnel

      Estimer votre bien